Tiêu Chuẩn Cửa Chống Cháy 60’ 90’ Và 120’ Phút Mới Nhất Năm Nay
mcnhat
10/22/20248 min read


Cửa thép chống cháy là một trong những thiết bị pccc quan trọng để đảm bảo an toàn cháy cho các công trình xây dựng, nhà ở, doanh nghiệp,… Cửa chống cháy phải tuân thủ các Tiêu chuẩn và Quy chuẩn chung về an toàn cháy Việt Nam, không chỉ khi xây mới mà còn khi cải tạo hay sửa chữa. Để biết thêm chi tiết về các tiêu chuẩn cửa thép chống cháy, bạn có thể tham khảo bài viết của Thế Giới Cửa Hiện Đại.
Tiêu chuẩn cửa thép chống cháy
Hiện nay, cửa gỗ chống cháy, cửa thép chống cháy là loại cửa được làm từ chất liệu có khả năng chống cháy, ngăn chặn sự lan truyền của lửa, khói, khí gas trong một khoảng thời gian nhất định. Tiêu chuẩn cửa chống cháy hiện nay theo TCVN 9383:2012 cập nhật 2022, cửa chống cháy phải đạt các tiêu chuẩn sau:
Vật liệu cửa chống cháy phù hợp
Các cửa sổ, cửa đi và vách ngăn cháy trong các phòng cần phải đảm bảo được làm bằng vật liệu chống cháy và có thể chịu được lửa ít nhất 45 phút.
Các cửa sổ, cửa đi và vách ngăn cháy ở mái hoặc tầng hầm phải đảm bảo được làm bằng vật liệu chống cháy đạt tiêu chuẩn, có thể chịu lửa ít nhất 40 phút
Các cửa phòng kỹ thuật, cửa cầu thang bộ thoát hiểm, cửa phòng tầng hầm trong các chung cư, tòa cao ốc phải có cơ cấu tự động đóng và có thể chịu lửa ít nhất 45 phút.
Đây là khoảng thời gian tối thiểu để thoát khỏi đám cháy theo quy định của TCVN 9383:2012. Nếu có yêu cầu cao hơn về thời gian chống cháy như 60, 90 hoặc 120 phút, thì các vật liệu và độ dày của cửa chống cháy phải được tăng lên để đảm bảo an toàn.
Kích thước độ dài đạt tiêu chuẩn của cửa chống cháy
Bộ tiêu chuẩn về cửa chống cháy đã đưa ra các quy định cụ thể về độ dày của cửa, kích thước và độ dày của thép được sử dụng để tạo ra cánh cửa. Mục tiêu của những quy định này là để đảm bảo rằng cửa có khả năng chống cháy tối thiểu từ 45 phút đến 60 phút, 90 phút và thậm chí là 120 phút.
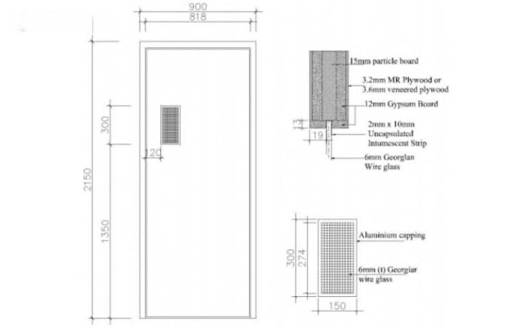
Kích thước tiêu chuẩn của cửa chống cháy có chiều rộng trong khoảng từ 800mm đến 1200mm, và chiều cao từ 1800mm đến 3000mm.
Cánh cửa chống cháy được làm từ thép có độ dày từ 0,8mm đến 2,0mm, tùy thuộc vào yêu cầu cụ thể.
Độ dày tổng thể của cánh cửa chống cháy bằng thép phải nằm trong khoảng từ 40 đến 50mm.


Các tiêu chuẩn khác của cửa chống cháy
Cửa chống cháy được thiết kế với nhiều yếu tố quan trọng để đảm bảo an toàn:
Kính cường lực chống cháy, được bổ sung thêm lưới thép chịu nhiệt, được sử dụng cho ô kính tiêu chuẩn của cửa.
Kích thước thông thường của ô kính là 200 x 400mm.
Lõi cửa có khả năng cách nhiệt, được làm từ rockwool (bông chống cháy) hoặc giấy tổ ong honeycomb paper, và được gia cố bằng xương thép.
Cửa được sơn một lớp sơn tĩnh điện, sơn vân gỗ, hoặc sơn dầu để tăng khả năng chống cháy.
Bản lề inox của cửa được thiết kế với kẹp, trụ và lá bằng Sill inox.
Phụ kiện không thể thiếu của cửa chống cháy bao gồm tay đẩy thủy lực và ổ khóa tay gạt.
Cuối cùng, cửa chống cháy phải có hệ thống gioăng cao su xung quanh để ngăn khói bay vào trong.
Tất cả các yếu tố này hỗ trợ cho nhau để tạo thành một bộ cửa chống cháy toàn diện, giúp ngăn ngừa thiệt hại do đám cháy gây ra cho tài sản và con người.
Một số yêu cầu về an toàn của cửa chống cháy 60
Cửa chống cháy 60 phút là một loại cửa có khả năng chịu được nhiệt độ cao từ lửa trong khoảng thời gian 60 phút, giúp bảo vệ tính mạng và tài sản của người sử dụng.
Cửa chống cháy 60 phút được làm từ hai tấm thép mạ điện có độ dày 0,8 mm, được gắn với nhau bằng các thanh tăng cứng. Bên trong cửa có lớp vật liệu chống cháy như bông khoáng, tấm Eron, vải thuỷ tinh, keo dán… để tăng khả năng cách nhiệt và cách âm.
Cửa chống cháy 60 phút có thể được sơn màu hoặc trang trí vân gỗ để tăng tính thẩm mỹ.
Cửa chống cháy 60 phút thường được sử dụng trong các công trình như căn hộ chung cư, khách sạn, bệnh viện, trường học… để ngăn chặn sự lan rộng của lửa và khói trong trường hợp xảy ra hỏa hoạn.
Cửa chống cháy 60 phút có thể được lắp đặt ở các vị trí như cửa căn hộ, cửa thoát hiểm, cửa phòng kỹ thuật
Cửa chống cháy 60 phút phải đạt các tiêu chuẩn kỹ thuật quốc gia về an toàn cháy cho nhà và công trình và có giấy kiểm định của cơ quan có thẩm quyền.


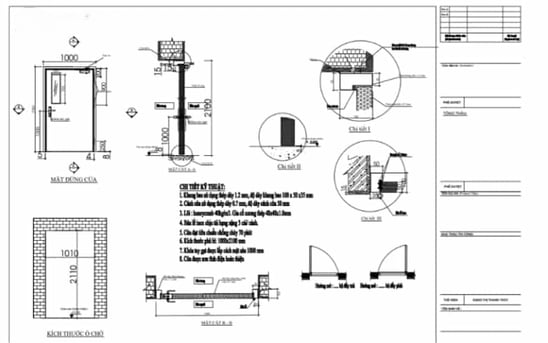
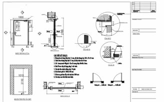
Một số yêu cầu về an toàn của cửa chống cháy 90
Dưới đây là các tiêu chí an toàn cơ bản mà một cánh cửa chống cháy 90 phải đạt:
Cánh cửa được làm từ thép cán nguội có độ dày từ 0.8mm đến 1.2mm, và độ dày của cánh cửa nằm trong khoảng từ 50mm đến 70mm.
Khung bao của cửa được làm từ thép cán nóng có độ dày là 1.6mm, và độ dày của khung nằm trong khoảng từ 100mm đến 110mm.
Cửa phải có khung doorsill ở phía dưới để ngăn không cho khói thoát qua phần dưới của cửa.
Lõi cửa được gia cố bằng xương thép và chất cách nhiệt MGO hoặc các loại chất chống cháy khác.
Cửa được trang bị gioăng cao su để ngăn không cho khói thoát ra, khi cửa được đóng lại, nó sẽ kín khít và êm ái.
Cửa được trang bị tay co thủy lực để giữ cho cửa luôn ở trạng thái đóng.
Nếu thiếu bất kỳ một trong những yếu tố trên, thì cửa sẽ không đạt tiêu chuẩn chống cháy hoặc không đảm bảo tính an toàn trong thiết kế xây dựng.


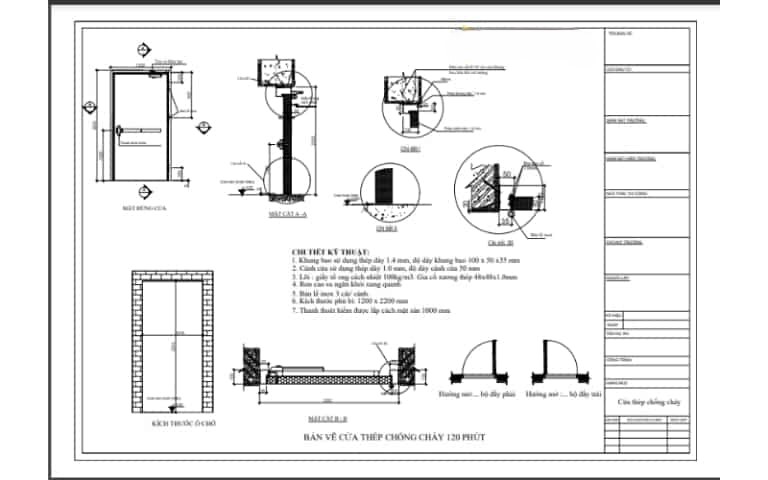
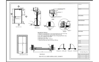
Một số yêu cầu về an toàn của cửa chống cháy 120
Cửa chống cháy 120 phút có lõi bông thủy tinh được cấu thành từ hai tấm thép mạ điện, mỗi tấm có độ dày 1mm.
Giữa hai tấm thép là một lớp bông thủy tinh dày 50mm, có khả năng cách nhiệt và cách âm cao. Bông thủy tinh là một loại vật liệu được sản xuất từ sợi thủy tinh nung chảy, có độ bền và đàn hồi tốt. Bông thủy tinh không bị ảnh hưởng bởi nhiệt độ cao, không bị mối mọt hay ẩm mốc, không gây kích ứng da hay đường hô hấp.
So với các loại cửa chống cháy khác, cửa chống cháy 120 phút có ưu điểm là có thời gian chịu được lửa lâu hơn, lên đến 120 phút. Đây là một yếu tố quan trọng trong việc đảm bảo an toàn cho người và tài sản khi xảy ra hỏa hoạn. Cửa chống cháy 120 phút thường được sử dụng trong các công trình có yêu cầu cao về khả năng chống cháy, như các tòa nhà cao tầng, các trung tâm thương mại, các văn phòng làm việc hay các nơi có đông người sinh hoạt.
thiết kế - thi công - lắp đặt - bảo trì
Cung cấp thiết bị PCCC và các giải pháp an toàn
Thông tin liên hệ
Địa chỉ: 08-ngõ 4- Hoàng Xuân Hãn -Tp Vinh - Nghệ An
SĐT: 0327 205 859
© 2024. All rights reserved.
Giới thiệu
Tin Tức

